Konalankulma ← Kaikki vapaat tilat

200 m² – lisäkuvia

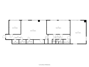
Toimisto. Aiemmin kokoustilana toimineessa huoneessa erillinen ilmastointi. Aula, keittiö, naulakko, neljä WC:tä ja varastohuone. Mahdollista jakaa 2 x 100m2.
200 m² – kuva
200 m² – kuva
200 m² – kuva
200 m² – kuva
200 m² – kuva
200 m² – kuva
200 m² – kuva
200 m² – kuva
200 m² – kuva
200 m² – kuva
200 m² – kuva